EDEL Real Estate

Sicher vermietete Kapitalanlage – gepflegte 1-Zimmer-Wohnung im Sprengelkiez

Wohnfläche
39 m²
Zimmer
1
Schlafzimmer
1
Badezimmer
1
115.000 €

Beschreibung

Diese gepflegte 1-Zimmer-Eigentumswohnung befindet sich im 1. Obergeschoss des ruhigen Hinterhauses eines klassischen Berliner Altbaus in begehrter Lage im beliebten Sprengelkiez und stellt eine interessante Gelegenheit für Kapitalanleger dar. Die Wohnung verfügt über eine Wohnfläche von ca. 39 m² und überzeugt durch einen großzügigen Grundriss, viel Tageslicht sowie eine langjährig stabile Vermietungssituation.

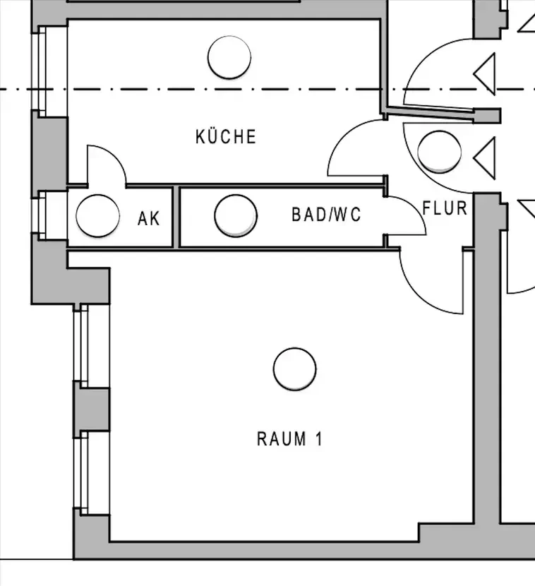
Betreten wird die Wohnung über die Diele, von der aus alle Räume zugänglich sind. Auf der linken Seite befindet sich das großzügig geschnittene Wohn- und Schlafzimmer mit zwei Fenstern, die in Richtung Süd/Ost ausgerichtet sind und für eine helle und freundliche Wohnatmosphäre sorgen. Der Raum bietet vielfältige Gestaltungsmöglichkeiten und ist mit einem hochwertigen Holzdielenboden ausgestattet, der den typischen Altbaucharakter unterstreicht.

Geradeaus von der Diele aus gelangt man in das Badezimmer, welches über ein Fenster verfügt und somit natürlich belüftet werden kann. Die Dusche befindet sich in der ehemaligen Speisekammer und ist über die Küche zugänglich, wodurch eine funktionale und für Altbauten typische Raumaufteilung gegeben ist. Die Küche befindet sich auf der rechten Seite der Diele und bietet ausreichend Platz für unterschiedliche Gestaltungsmöglichkeiten.

Im Flur, im Badezimmer sowie in der Küche wurde ein pflegeleichter Laminatboden verlegt. Die originalen Holzdielen befinden sich weiterhin unter dem Laminat und können bei Bedarf wieder freigelegt werden.

Die Wohnung ist seit 2009 an einen sozialen Träger aus Berlin vermietet. Der Mieter hat seine Zahlungsverpflichtungen stets fristgerecht erfüllt und ist innerhalb der Eigentümergemeinschaft positiv aufgefallen. Die monatliche Nettokaltmiete beträgt derzeit 339,97 €, zuzüglich Betriebskosten in Höhe von 68,61 € sowie Heizkosten in Höhe von 31,36 €. Das monatliche Hausgeld beträgt aktuell 257,00 €, wovon 66,04 € nicht auf den Mieter umlegbar sind.

Das Gebäude präsentiert sich insgesamt in einem gepflegten Zustand. Der Eingangsbereich wurde vor kurzem instandgesetzt und mit neuen Briefkastenanlagen ausgestattet. Die Heizungsanlage wurde bereits auf eine moderne Kraft-Wärme-Kopplungsanlage umgestellt. Zudem wurden die Fenster in der Wohnung bereits gegen doppelverglaste Kunststofffenster ausgetauscht.

Durch die Lage im Hinterhaus sowie im 3. Obergeschoss bietet die Wohnung eine angenehme Wohnruhe trotz zentraler Lage. Gleichzeitig sorgen die Süd/Ost-ausgerichteten Fenster für eine helle und freundliche Atmosphäre, wie sie für typische Berliner Altbauwohnungen mit viel Tageslicht charakteristisch ist.

Die Wohnung befindet sich in einer ruhigen Nebenstraße im beliebten Sprengelkiez, einer der gefragten Wohnlagen im Berliner Stadtgebiet. Die Infrastruktur ist hervorragend. Geschäfte des täglichen Bedarfs, Restaurants, Cafés sowie zahlreiche Freizeit- und Erholungsmöglichkeiten sind fußläufig erreichbar. Auch die Anbindung an den öffentlichen Nahverkehr ist sehr gut, sodass eine schnelle Verbindung in die Innenstadt sowie in andere Stadtteile gewährleistet ist.

Die EDEL Real Estate GmbH freut sich darauf, Sie bei dieser attraktiven Immobilie zu unterstützen, und steht Ihnen für Rückfragen sowie zur Vereinbarung eines Besichtigungstermins jederzeit zur Verfügung.

Wir freuen uns auf Ihre Rückmeldung!
EDEL Real Estate GmbH
www.edel-re.com
Ausstattung
+ Ca. 39 m² Wohnfläche
+ 1 Zimmer
+ Lage im 1. Obergeschoss im ruhigen Hinterhaus
+ Großzügiges Wohn- und Schlafzimmer mit zwei Fenstern
+ Süd-/Ost-Ausrichtung der Fenster
+ Hochwertiger Holzdielenboden im Wohnraum
+ Laminatboden in Flur, Küche und Badezimmer
+ Originale Dielen unter dem Laminat vorhanden
+ Separate Küche mit Zugang zur Dusche
+ Tageslichtbadezimmer mit Fenster
+ Funktionale Altbau-typische Raumaufteilung
+ Doppelverglaste Kunststofffenster
+ Seit 2009 an sozialen Träger vermietet
+ Zuverlässiger Mieter mit pünktlicher Mietzahlung
+ Nettokaltmiete: 339,97 €
+ Betriebskosten: 68,61 €
+ Heizkosten: 31,36 €
+ Hausgeld: 257,00 €
+ Nicht umlagefähiger Anteil: 66,04 €
+ Gepflegtes Gebäude
+ Eingangsbereich kürzlich instandgesetzt
+ Neue Briefkastenanlage
+ Moderne Kraft-Wärme-Kopplungsanlage
+ Gefragte Lage im Sprengelkiez
+ Ruhige Nebenstraße
+ Sehr gute Infrastruktur
+ Einkaufsmöglichkeiten, Cafés und Restaurants fußläufig erreichbar
+ Gute Anbindung an den öffentlichen Nahverkehr


Fakten
Objektart
Eigentumswohnung
Etage(n)
1 von 5
Wohnfläche
39 m²
Nutzfläche
N/A
Zimmer
1
Schlafzimmer
1
Badezimmer
1
Bezugsfrei ab
N/A

Kriterien
  • Keller

Lage
Karte
13353, Wedding, Mitte, Berlin, Germany

Die angebotene Immobilie befindet sich in gefragter Wohnlage im beliebten Berliner Ortsteil Wedding, im sogenannten Sprengelkiez, einem der lebendigsten und sich dynamisch entwickelnden Wohnquartiere im Berliner Norden. Die Umgebung zeichnet sich durch eine gewachsene Altbaustruktur, eine vielfältige Nachbarschaft sowie eine sehr gute Infrastruktur aus und erfreut sich sowohl bei Eigennutzern als auch bei Kapitalanlegern großer Beliebtheit.

In unmittelbarer Umgebung finden sich zahlreiche Einkaufsmöglichkeiten für den täglichen Bedarf, darunter Supermärkte, Bäckereien, Apotheken sowie kleinere Fachgeschäfte. Darüber hinaus bietet der Kiez eine große Auswahl an Restaurants, Cafés und Bars, die das urbane und gleichzeitig nachbarschaftliche Flair der Lage prägen. Wochenmärkte, Grünflächen und kleinere Parks sorgen zusätzlich für eine hohe Lebensqualität.

Die Anbindung an den öffentlichen Nahverkehr ist ausgezeichnet. Mehrere U-Bahn-, S-Bahn- und Buslinien sind fußläufig erreichbar und ermöglichen eine schnelle Verbindung in die Berliner Innenstadt, nach Mitte, Prenzlauer Berg, Charlottenburg sowie zu weiteren wichtigen Stadtteilen. Auch mit dem Auto besteht eine gute Anbindung an die übergeordneten Verkehrsachsen.

Die Wohnung selbst liegt in einer ruhigen Nebenstraße, wodurch angenehme Wohnruhe mit den Vorteilen einer zentralen Lage kombiniert wird. Gleichzeitig sind Universitätsstandorte, Kliniken sowie verschiedene öffentliche Einrichtungen in kurzer Zeit erreichbar, was die Lage zusätzlich attraktiv macht.


Eckdaten
Baujahr
1910
Modernisierung/Sanierung
N/A
Objektzustand
N/A
Ausstattung
Gepflegt
Heizungsart
Zentralheizung
Wesentlicher Energieträger
N/A
Energieausweis
Liegt vor
Energieausweistyp
N/A

Ausstattung

Alle Angaben sind ohne Gewähr und basieren ausschließlich auf Informationen, die uns von unserem Auftraggeber übermittelt wurden. Wir übernehmen keine Gewähr für die Vollständigkeit, Richtigkeit und Aktualität dieser Angaben. Zwischenvermietung bleibt vorbehalten.

Wir stehen Ihnen mit weiteren Informationen zum Objekt und zum Eigentümer sowie für Besichtigungen gern zur Verfügung.


Kontakt

Wir stehen Ihnen mit weiteren Informationen zum Objekt und zum Eigentümer sowie für Besichtigungen gern zur Verfügung.

Kontaktieren Sie uns unter:

Telefon: +49 (0) 30 8632913-0

E-Mail: office@edel-re.com