EDEL Real Estate

Bezugsfrei ab 01.05.2026, 1-Zi ETW mit Balkon in ruhiger Lage

Wohnfläche
38 m²
Zimmer
1
Schlafzimmer
1
Badezimmer
1
145.000 €

Beschreibung

 

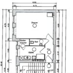
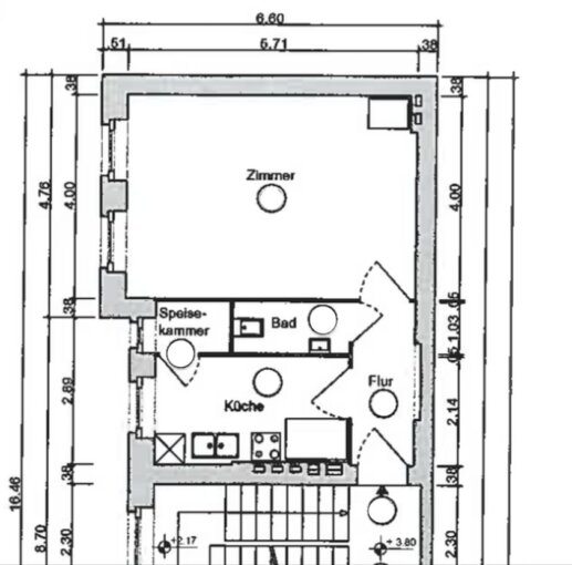
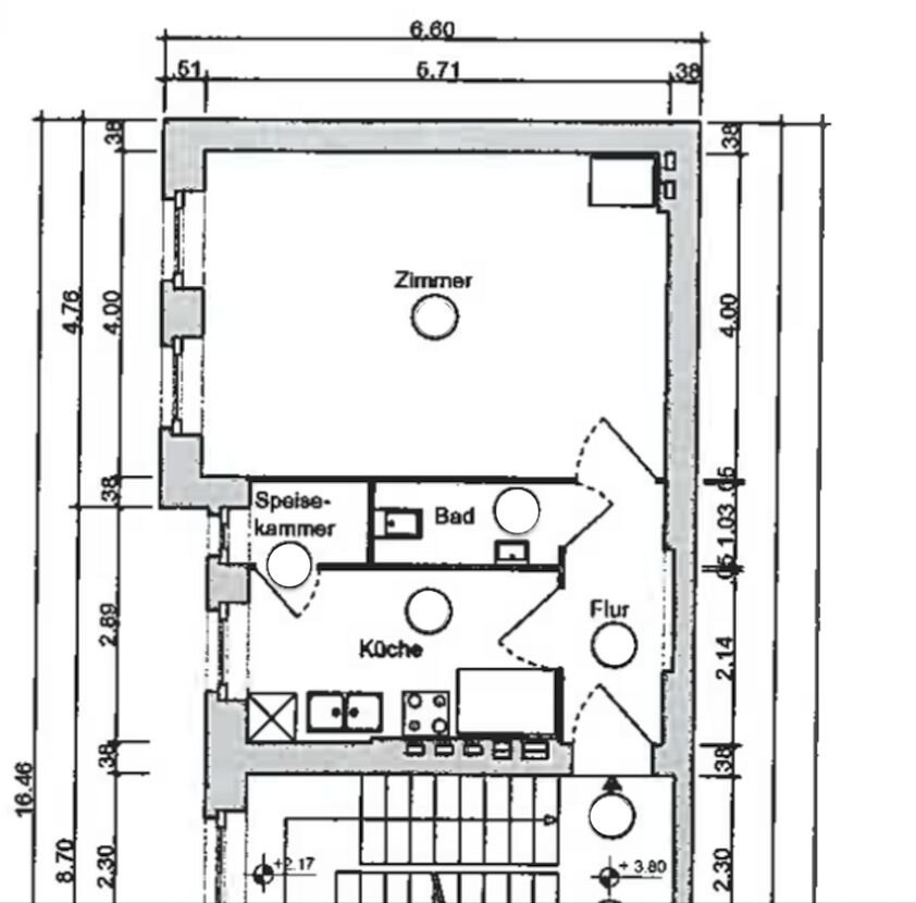
Diese attraktive, ca. 38 m² große 1-Zimmer-Eigentumswohnung befindet sich in einem gepflegten Berliner Altbau in gefragter Wohnlage von Berlin-Pankow (Ortsteil Weißensee). Die Wohnung liegt im 1. Obergeschoss des ruhigen Seitenflügels eines Mehrfamilienhauses und überzeugt durch ihren klassischen Grundriss, den charmanten Altbaucharakter sowie ihre angenehme Helligkeit. Die großformatigen Fenster sind nach Osten ausgerichtet und sorgen bereits am Morgen für einen freundlichen, lichtdurchfluteten Wohnbereich. Sowohl die Elektrik als auch die Fenster wurden bereits modernisiert und befinden sich in einem zeitgemäßen Zustand.

Das großzügig geschnittene Zimmer bietet vielfältige Nutzungsmöglichkeiten und lässt sich sowohl als Wohn- und Schlafbereich kombinieren als auch flexibel nach individuellen Bedürfnissen gestalten. Der hochwertige Holzdielenboden unterstreicht den typischen Berliner Altbaucharme und schafft eine warme, einladende Wohnatmosphäre.

Der vorhandene Balkon wird über die Küche betreten, wodurch dieser Bereich eine angenehme Trennung zwischen Kochen und Wohnen bietet und zugleich einen zusätzlichen Rückzugsort im Freien eröffnet.

Das Tageslichtbadezimmer ist klassisch gefliest und mit einer Dusche ausgestattet. Die klare Aufteilung und der gepflegte Zustand ermöglichen eine sofortige Nutzung ohne Renovierungsbedarf. Die Wohnung ist derzeit befristet bis zum 30.04.2026 für 500 € Warmmiete vermietet und eignet sich daher ideal als attraktive Kapitalanlage mit planbaren Mieteinnahmen und perspektivischer Eigennutzung.

Die Lage in einer ruhigen Nebenstraße von Pankow zählt zu den beliebtesten Wohngegenden im Norden Berlins. Zahlreiche Geschäfte des täglichen Bedarfs, Restaurants, Cafés sowie vielfältige Freizeit- und Kulturangebote sind bequem fußläufig erreichbar. Die ausgezeichnete Verkehrsanbindung – sowohl durch den öffentlichen Nahverkehr als auch durch die nahegelegenen Hauptverkehrsadern – gewährleistet eine schnelle und komfortable Verbindung in die Berliner Innenstadt.

Diese charmante Altbauwohnung vereint einen durchdachten Grundriss, modernen Wohnkomfort durch bereits erfolgte Sanierungsmaßnahmen und eine hervorragende Lage – ein ideales Angebot für Kapitalanleger oder zukünftige Eigennutzer, die den besonderen Wohnwert eines klassischen Berliner Altbaus zu schätzen wissen.

Zögern Sie nicht und vereinbaren Sie noch heute einen Besichtigungstermin, um sich selbst von den Vorzügen dieser einzigartigen Wohnung zu überzeugen!

Die EDEL Real Estate GmbH freut sich darauf, Sie bei dieser einzigartigen Investitionsmöglichkeit zu unterstützen und steht Ihnen für Rückfragen sowie zur Vereinbarung eines Beratungsgesprächs jederzeit zur Verfügung.

Wir freuen uns auf Ihre Rückmeldung!
EDEL Real Estate GmbH

Ausstattung

+ 1-Zi.-Etw. mit ca. 38 m² Wohnfläche
+ Ruhiger Seitenflügel im 1. OG
+ Hochwertiger Holzdielenboden im Wohn- und Schlafbereich
+ Großzügig geschnittener Wohnraum mit flexiblen Gestaltungsmöglichkeiten
+ Fenster mit Ost-Ausrichtung – viel Licht am Morgen
+ Modernisierte Elektrik
+ Erneuerte Fenster
+ Balkon, zugänglich über die Küche
+ Klassisch gefliestes Tageslichtbad mit Dusche
+ Typischer Berliner Altbau mit viel Tageslicht
+ Vermietet bis 30.04.2026, Warmmiete 500 €
+ Begehrte Wohnlage in Berlin-Pankow
+ Ruhige Nebenstraße
+ Hervorragende Infrastruktur
+ Geschäfte des täglichen Bedarfs, Restaurants, Cafés und Freizeitangebote fußläufig erreichbar


Fakten
Objektart
Eigentumswohnung
Etage(n)
1 von 5
Wohnfläche
38 m²
Nutzfläche
N/A
Zimmer
1
Schlafzimmer
1
Badezimmer
1
Bezugsfrei ab
01.05.2025

Kriterien
  • Balkon/Terrasse
  • Keller

Lage
Karte
13088, Weißensee, Pankow, Berlin, Germany

Die Wohnung befindet sich in einer beliebten und etablierten Wohnlage im Nordosten Berlins, im Ortsteil Weißensee. Das Umfeld ist geprägt von gepflegten Altbauhäusern, weitläufigen Grünflächen und einer hervorragenden städtischen Infrastruktur. Die ruhigen, baumgesäumten Straßen schaffen ein angenehmes, familienfreundliches Wohngefühl und verbinden urbanes Leben mit hoher Wohnqualität.

Der nahegelegene Weißensee sowie der Antonplatz sind bequem erreichbar und bieten zahlreiche Möglichkeiten zur Erholung, Freizeitgestaltung und zum Spaziergehen. Die Umgebung zeichnet sich durch ein vielfältiges Angebot an Restaurants, Cafés, Supermärkten und kleineren Fachgeschäften aus, die den täglichen Bedarf komfortabel abdecken.

Die Verkehrsanbindung ist ausgezeichnet: Mehrere Tram- und Buslinien ermöglichen eine schnelle Verbindung in die Berliner Innenstadt, zum Alexanderplatz sowie in die angrenzenden Bezirke Prenzlauer Berg und Pankow. Auch mit dem Auto sind zentrale Punkte der Stadt gut erreichbar.

Schulen, Kitas, medizinische Einrichtungen sowie diverse Sport- und Freizeitangebote befinden sich ebenfalls in unmittelbarer Nähe und unterstreichen die Attraktivität dieser Wohnlage. Weißensee zählt seit Jahren zu den nachgefragten Wohngebieten Berlins und bietet eine ideale Kombination aus Ruhe, urbaner Infrastruktur und naturnahem Wohnen.


Eckdaten
Baujahr
1920
Modernisierung/Sanierung
N/A
Objektzustand
Saniert
Ausstattung
Gepflegt
Heizungsart
Zentralheizung
Wesentlicher Energieträger
Gas
Energieausweis
Liegt vor
Energieausweistyp
Bedarfsausweis

Ausstattung

Alle Angaben sind ohne Gewähr und basieren ausschließlich auf Informationen, die uns von unserem Auftraggeber übermittelt wurden. Wir übernehmen keine Gewähr für die Vollständigkeit, Richtigkeit und Aktualität dieser Angaben.

Wir stehen Ihnen mit weiteren Informationen zum Objekt und zum Eigentümer sowie für Besichtigungen gern zur Verfügung.


Kontakt

Wir stehen Ihnen mit weiteren Informationen zum Objekt und zum Eigentümer sowie für Besichtigungen gern zur Verfügung.

Kontaktieren Sie uns unter:

Telefon: +49 (0) 30 8632913-0

E-Mail: office@edel-re.com