EDEL Real Estate

Bezugsfreie 2-Zi. DG-Wohnung mit Süd-Terrasse & Aufzug mit viel Gestaltungspotenzial

Wohnfläche
75 m²
Zimmer
2
Schlafzimmer
1
Badezimmer
1
340.000 €

Beschreibung

Diese großzügig geschnittene 2-Zimmer-Eigentumswohnung befindet sich im 5. Obergeschoss eines gepflegten Berliner Wohnhauses in begehrter Lage von Berlin-Charlottenburg. Mit einer Wohnfläche von ca. 75 m² bietet die Wohnung ein komfortables Raumangebot und überzeugt durch ihre funktionale Grundrissgestaltung sowie die attraktive Südausrichtung, die für eine helle und freundliche Wohnatmosphäre sorgt. Ein Aufzug ist im Gebäude vorhanden und gewährleistet einen bequemen Zugang zur Wohnung.

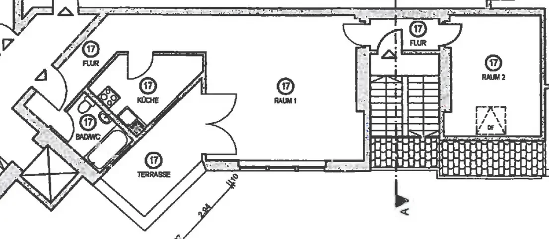
Der Zugang zur Wohnung erfolgt über einen zentralen Flur, von dem aus die verschiedenen Bereiche der Wohnung erschlossen werden. Auf der rechten Seite des Eingangsbereichs befindet sich das Tageslichtbadezimmer, welches mit einer Badewanne ausgestattet ist. Ebenfalls auf dieser Seite liegt ein großzügiger Abstellraum, der zusätzlichen Stauraum innerhalb der Wohnung bietet. Auf der linken Seite des Flures befindet sich die Küche, die über eine praktische Durchreiche zum angrenzenden Wohnzimmer verfügt. Das Wohnzimmer präsentiert sich großzügig geschnitten und bildet den zentralen Wohnbereich der Wohnung.

Vom Wohnzimmer aus gelangt man sowohl auf die nach Süden ausgerichtete Terrasse als auch in einen zweiten Flur, der zum Schlafzimmer führt. Die Terrasse mit einer Größe von ca. 7 m² stellt eine angenehme Erweiterung des Wohnraums dar und bietet einen ruhigen Außenbereich mit sonniger Südausrichtung. Sowohl die Fenster als auch die Terrasse sind nach Süden orientiert, wodurch die Wohnung besonders lichtdurchflutet ist.

Die Wohnräume sind mit Laminatboden ausgestattet. Die großzügigen Zimmer bieten vielfältige Gestaltungsmöglichkeiten und lassen sich flexibel an unterschiedliche Wohnbedürfnisse anpassen. Die Wohnung ist renovierungsbedürftig und eröffnet dadurch die Möglichkeit, individuelle Modernisierungs- und Gestaltungsideen umzusetzen.

Die Wohnung wird unvermietet übergeben und steht somit sowohl zur Eigennutzung als auch zur Weitervermietung zur Verfügung. Die auf den Fotos erkennbaren Möbel und sonstigen Gegenstände werden bis zur Übergabe der Wohnung vollständig entfernt.

Das Gebäude befindet sich in einem gepflegten Zustand. Die Instandhaltungsrücklage der Wohnungseigentümergemeinschaft beläuft sich aktuell auf ca. 125.000,00 €. Das monatliche Hausgeld beträgt derzeit 402,31 €.

Die Lage in Berlin-Charlottenburg zählt zu den gefragtesten Wohnlagen der Hauptstadt. Die Wohnung befindet sich in einer ruhigen Nebenstraße und verbindet somit angenehme Wohnruhe mit einer hervorragenden städtischen Infrastruktur. Geschäfte des täglichen Bedarfs, Supermärkte, Restaurants, Cafés sowie vielfältige Freizeit- und Kulturangebote sind in der näheren Umgebung vorhanden und bequem fußläufig erreichbar. Auch die Anbindung an den öffentlichen Nahverkehr ist ausgezeichnet, sodass eine schnelle Verbindung in andere Stadtteile Berlins gewährleistet ist.

Wir freuen uns auf Ihre Rückmeldung.

EDEL Real Estate GmbH
https://www.edel.re.com
Ausstattung
+ Ca. 75 m² Wohnfläche
+ 2 Zimmer
+ Lage im 5. Obergeschoss
+ Aufzug im Gebäude vorhanden
+ Sonnige Südausrichtung der Fenster und der Terrasse
+ Ca. 7 m² große Süd-Terrasse
+ Großzügiges Wohnzimmer mit Zugang zur Terrasse
+ Separate Küche mit praktischer Durchreiche zum Wohnzimmer
+ Tageslichtbadezimmer mit Badewanne
+ Großer Abstellraum innerhalb der Wohnung
+ Zweiter Flur mit Zugang zum Schlafzimmer
+ Laminat-Fußboden in den Wohnräumen
+ Großzügige Raumaufteilung mit vielfältigen Gestaltungsmöglichkeiten
+ Renovierungsbedürftiger Zustand mit Entwicklungspotenzial
+ Typische Berliner Altbauwohnung mit viel Tageslicht
+ Wohnung wird unvermietet übergeben
+ Geeignet zur Selbstnutzung oder Weitervermietung
+ Auf den Fotos sichtbare Möbel und Gegenstände werden vor Übergabe entfernt
+ Gepflegtes Gebäude
+ Instandhaltungsrücklage der WEG ca. 125.000 €
+ Monatliches Hausgeld: 402,31 €
+ Gefragte Wohnlage in Berlin-Charlottenburg
+ Ruhige Nebenstraße
+ Hervorragende Infrastruktur
+ Geschäfte des täglichen Bedarfs, Restaurants, Cafés und Freizeitangebote fußläufig erreichbar


Fakten
Objektart
Dachgeschosswohnung
Etage(n)
5 von 5
Wohnfläche
75 m²
Nutzfläche
N/A
Zimmer
2
Schlafzimmer
1
Badezimmer
1
Bezugsfrei ab
sofort

Kriterien
  • Balkon/Terrasse
  • Einbauküche
  • Keller
  • Personenaufzug

Lage
Karte
10587, Charlottenburg, Charlottenburg-Wilmersdorf, Berlin, Germany

Das Beste aus drei Welten: Wohnen zwischen Charlottenburg, Tiergarten und Mitte Hier vereinen sich die Energie von Mitte, mit der Ruhe des Tiergartens und der Idylle des Spreeufers. Für die Bewohner der Helmholtzstraße heißt dies, Sie profitieren vom Besten aus drei Welten: Tagsüber erleben Sie in den zahlreichen Cafés und Restaurants der Straße Genüsse und Sprachen aus 5 Kontinenten. Abends, nach Feierabend, fasziniert die Ruhe im Kiez, und ein ruhiger und entspannter Spaziergang an der Uferpromenade der Insel lässt Sie nach einem anstrengenden Tag die Sonne genießen.

Von Spree und Landwehrkanal umschlossen führt die Helmholtzstraße einmal quer über eine Halbinsel, dem Übergang zwischen Moabit und Charlottenburg. Internationale Konzerne, wichtige Abteilungen der TU Berlin und des Frauenhofer Instituts haben sich auf dieser Spreeinsel angesiedelt.


Eckdaten
Baujahr
1918
Modernisierung/Sanierung
N/A
Objektzustand
Gepflegt
Ausstattung
Gepflegt
Heizungsart
N/A
Wesentlicher Energieträger
Öl
Energieausweis
Liegt vor
Energieausweistyp
Verbrauchsausweis

Ausstattung

Alle Angaben sind ohne Gewähr und basieren ausschließlich auf Informationen, die uns von unserem Auftraggeber übermittelt wurden. Wir übernehmen keine Gewähr für die Vollständigkeit, Richtigkeit und Aktualität dieser Angaben. Zwischenvermietung bleibt vorbehalten.

Wir stehen Ihnen mit weiteren Informationen zum Objekt und zum Eigentümer sowie für Besichtigungen gern zur Verfügung.


Kontakt

Wir stehen Ihnen mit weiteren Informationen zum Objekt und zum Eigentümer sowie für Besichtigungen gern zur Verfügung.

Kontaktieren Sie uns unter:

Telefon: +49 (0) 30 8632913-0

E-Mail: office@edel-re.com