EDEL Real Estate

Kauf ohne Besichtigung, 1-Zi. ETW mit Balkon mit viel Potenzial, Berlin Neukölln

Wohnfläche
44 m²
Zimmer
1
Schlafzimmer
1
Badezimmer
1
130.000 €

Beschreibung

Diese attraktive 1-Zimmer-Eigentumswohnung befindet sich in einer gefragten Wohnlage im Berliner Bezirk Neukölln, gelegen in einer ruhigen Nebenstraße mit angenehmem Wohnumfeld. Die Kombination aus urbaner Lagequalität, sehr guter Infrastruktur und einem gepflegten Gebäudezustand macht dieses Angebot sowohl für Kapitalanleger als auch für perspektivische Eigennutzer besonders interessant.

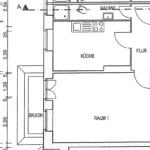
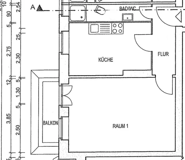
Die Wohnung liegt in der 3. Etage eines gepflegten Mehrfamilienhauses und verfügt über ca. 44 m² Wohnfläche. Das großzügig geschnittene Zimmer bietet vielfältige Gestaltungsmöglichkeiten und lässt sich sowohl als klassische Kombination aus Wohn- und Schlafbereich als auch mit separiertem Arbeitsbereich optimal nutzen. Typisch für Berliner Altbauwohnungen überzeugt die Einheit durch eine angenehme Belichtung sowie ein freundliches Raumgefühl. Ein Balkon ist ebenfalls vorhanden und bietet einen zusätzlichen Mehrwert als private Außenfläche.

Die Wohnung ist seit 2007 vermietet. Die Nettokaltmiete beträgt 330,– € zzgl. 100,– € Betriebskosten. Die Mietzahlung wird derzeit über das Jobcenter übernommen. Nach aktuellem Kenntnisstand befindet sich der Mieter jedoch im Ausland und ist derzeit nicht in der Wohnung anzutreffen. Der Innenzustand der Wohnung ist einfach und es ist davon auszugehen, dass die Einheit umfassend renovierungsbedürftig ist. Für Käufer mit Sanierungsbereitschaft eröffnet dies zugleich die Möglichkeit, den Wohnwert nach eigenen Vorstellungen deutlich zu steigern.

Das monatliche Hausgeld beträgt 178,– €, davon sind ca. 80,– € nicht umlagefähig. Die Instandhaltungsrücklage der Wohnungseigentümergemeinschaft liegt bei ca. 100.000,– €, was die solide finanzielle Basis der Gemeinschaft unterstreicht und perspektivisch eine verlässliche Grundlage für notwendige Instandhaltungsmaßnahmen bietet.

Die Lage in Neukölln überzeugt durch eine hervorragende Infrastruktur: Geschäfte des täglichen Bedarfs, Supermärkte, Apotheken, Ärzte sowie vielfältige Restaurants, Cafés und Freizeitangebote sind fußläufig erreichbar. Zudem ist die Anbindung an den öffentlichen Nahverkehr sehr gut, wodurch eine schnelle Erreichbarkeit der Berliner Innenstadt sowie weiterer Stadtteile gewährleistet ist. Trotz der zentralen Lage profitiert die Wohnung durch die ruhige Nebenstraße von einer angenehmen Wohnatmosphäre.

Insgesamt handelt es sich um eine interessante Altbau-Eigentumswohnung mit Balkon, großzügigem Grundriss und sehr guter Lagequalität, die insbesondere durch das Wertsteigerungspotenzial nach Renovierung sowie die solide Gebäudesubstanz überzeugt.

Selbstverständlich stehen wir Ihnen für weitere Informationen sowie zur Klärung von Rückfragen jederzeit gerne zur Verfügung.

Bei Bedarf unterstützen wir Sie vollumfänglich bei der Verwaltung und Vermietung Ihrer Eigentumswohnung. Wir informieren Sie gerne in einem persönlichem Gespräch über die Möglichkeiten und Konditionen unseres Services.

Wir freuen uns auf Ihre Rückmeldung!
EDEL Real Estate GmbH
https://www.edel-re.com
Ausstattung
+ 1-Zimmer-Eigentumswohnung mit ca. 44 m² Wohnfläche
+ 3.Obergeschoss in gepflegtem Mehrfamilienhaus
+ Großzügiger Grundriss mit vielseitigen Gestaltungsmöglichkeiten
+ Typischer Berliner Altbaucharakter mit viel Tageslicht
+ Balkon vorhanden
+ Gefragte Wohnlage in Berlin-Neukölln, ruhige Nebenstraße
+ Hervorragende Infrastruktur: Einkaufsmöglichkeiten, Restaurants, Cafés & Freizeitangebote fußläufig erreichbar
+ Seit 2007 vermietet (Mietzahlung derzeit über Jobcenter)
+ Mieter derzeit im Ausland / nicht in der Wohnung anzutreffen
+ Innenzustand einfach, vollständige Renovierung erforderlich (hohes Wertsteigerungspotenzial)
+ Nettokaltmiete: 330 € zzgl. 100 € Betriebskosten
+ Hausgeld: 178 € monatlich, davon ca. 80 € nicht umlagefähig
+ Instandhaltungsrücklage der WEG: ca. 100.000 €
+ Sehr gute Anbindung an den öffentlichen Nahverkehr


Fakten
Objektart
Eigentumswohnung
Etage(n)
3 von 5
Wohnfläche
44 m²
Nutzfläche
N/A
Zimmer
1
Schlafzimmer
1
Badezimmer
1
Bezugsfrei ab
N/A

Kriterien
  • Balkon/Terrasse
  • Keller

Lage
Karte
12051, Neukölln, Berlin, Germany

Die Immobilie befindet sich in einer gefragten und zugleich angenehm urbanen Wohnlage im Berliner Bezirk Neukölln. Das Umfeld zeichnet sich durch eine sehr gute Infrastruktur, kurze Wege sowie eine stetig hohe Nachfrage aus und verbindet lebendiges Stadtleben mit ruhigen Wohnstraßen und gewachsenen Kiezstrukturen.

In der unmittelbaren Umgebung stehen zahlreiche Einkaufsmöglichkeiten des täglichen Bedarfs, Supermärkte, Apotheken sowie Ärzte und weitere Dienstleister zur Verfügung. Ergänzt wird das Angebot durch eine vielfältige Auswahl an Restaurants, Cafés und Bars, die den Bezirk Neukölln zu einer besonders beliebten Wohngegend für unterschiedlichste Zielgruppen machen.

Die Anbindung an den öffentlichen Nahverkehr ist hervorragend. Mehrere Bus- und Bahnverbindungen ermöglichen eine schnelle Erreichbarkeit der Berliner Innenstadt sowie angrenzender Bezirke. Auch die Verkehrsanbindung für Autofahrer ist durch die Nähe zu wichtigen Hauptverkehrsstraßen sehr vorteilhaft.

Zudem befinden sich Grün- und Erholungsflächen in der näheren Umgebung, die zu Spaziergängen, sportlichen Aktivitäten und Freizeitgestaltung einladen. Insgesamt bietet die Lage eine ideale Kombination aus urbaner Lebensqualität, sehr guter Infrastruktur und nachhaltiger Wertstabilität.


Eckdaten
Baujahr
1906
Modernisierung/Sanierung
N/A
Objektzustand
Gepflegt
Ausstattung
Gepflegt
Heizungsart
Zentralheizung
Wesentlicher Energieträger
Gas
Energieausweis
Liegt zur Besichtigung vor
Energieausweistyp
N/A

Ausstattung
Alle Angaben sind ohne Gewähr und basieren ausschließlich auf Informationen, die uns von unserem Auftraggeber übermittelt wurden. Wir übernehmen keine Gewähr für die Vollständigkeit, Richtigkeit und Aktualität dieser Angaben. Zwischenvermietung bleibt vorbehalten.

Kontakt

Wir stehen Ihnen mit weiteren Informationen zum Objekt und zum Eigentümer sowie für Besichtigungen gern zur Verfügung.

Kontaktieren Sie uns unter:

Telefon: +49 (0) 30 8632913-0

E-Mail: office@edel-re.com